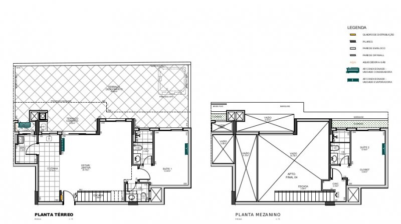
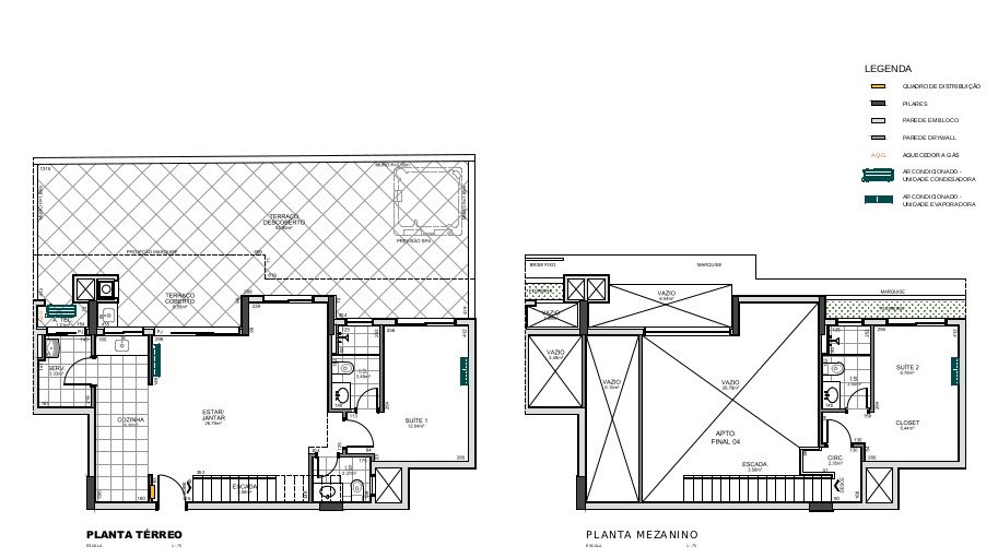
Apartamento Garden à Venda com 2 dormitórios, sendo 2 suítes, 170,34 m²
Rua Bom Jesus, 928Juvevê, Curitiba - PR
Informações
- Perfil: Novo
- Posição: Face Norte
- Mobília: Não Mobiliado
- Em Condomínio
- Condomínio: Apartamento Garden
- Ano da Construção: 2024
- Aceita FinanciamentoSimular Financimento
Medidas
- Área Total: 200 m² (R$ 11.245/m²)
- Área Privativa: 170,34 m²
Descrição
Agende sua visita:Ligue , Envie um e-mail ou envie um Whatsapp para mais informações.
Obs: Preço sujeito a alteração sem aviso prévio, consultar disponibilidade.
Características
- Academia
- Água Quente
- Aquecimento A Gás
- Ar Condicionado
- Bicicletário
- Bosque Interno Preservado
- Brinquedoteca
- Churrasqueira
- Coworking
- Elevador
- Fireplace
- Garagem
- Pet Place
- Piscina
- Piscina Coberta
- Playground
- Quadra Poliesportiva
- Salão de Festas
- Salão de Jogos
- Solarium
O que tem perto?
- Açougue, Feiras e Supermercados
- Comércio
- Escolas Particulares
- Escolas Públicas


























