Apartamento à Venda com 1 dormitório, 32,77 m²
Rua Brigadeiro Franco, 1173Mercês, Curitiba - PR
Informações
- Perfil: Novo
- Mobília: Não Mobiliado
- Em Condomínio
- Total de Unidades: 687
- Nº de Andares: 9
- Nº de Unidades por Andar: 8
- Ano da Construção: 2027
- Previsão de Entrega: 30/07/2027
- Aceita FinanciamentoSimular Financimento
Medidas
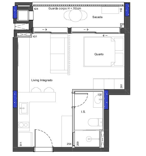
- Área Total: 32,77 m² (R$ 17.027/m²)
- Área Privativa: 32,77 m²
Descrição
Descubra Um Oásis de Modernidade e Lazer Completo: Apartamentos Exclusivos com Diferenciais Incríveis! Imagine um lar onde o conforto, a praticidade, a tecnologia e o lazer completo se unem à segurança e à exclusividade, tudo em uma localização privilegiada no centro de Curitiba. um empreendimento que vai transformar a sua forma de viver. Diferenciais que fazem a diferença:
-
- Tomadas USB no coworking, salão de festas e academia: praticidade para você carregar seus dispositivos eletrônicos onde precisar. Paisagismo exclusivo para as áreas comuns: um ambiente verde e relaxante para você aproveitar ao ar livre. Ambientes da área de lazer entregues mobiliados e decorados: tudo pronto para você se divertir sem se preocupar com nada. Eclusa de pedestres com área para recebimento de delivery: segurança e praticidade para receber suas compras online. Sistema de exaustão nas áreas comuns: ar puro e ventilado para o seu bem-estar. Infraestrutura de rede Wi-Fi no salão de festas e academia: conectividade garantida para você navegar, trabalhar ou se divertir. Acesso nas áreas comuns com biometria: segurança e praticidade no seu dia a dia. Aquecimento central: conforto térmico garantido em todas as épocas do ano. Infraestrutura para som no salão de festas e academia: música ambiente para você relaxar ou se divertir. Ponto USB no quarto: praticidade para você carregar seus dispositivos eletrônicos no conforto do seu lar. Piso em porcelanato: um acabamento sofisticado e fácil de limpar.
Serviços de personalização que podem ser contratados à parte:
-
- Infraestrutura completa para ar-condicionado: conforto térmico em qualquer época do ano. Água quente na cuba da cozinha: praticidade no seu dia a dia. Infraestrutura para spa nas unidades gardens: um spa particular no seu próprio apartamento.
Plantas inteligentes e funcionais:
-
- Térreo: Guarita: segurança 24 horas para você e sua família. Eclusa: controle de acesso para as áreas comuns do edifício. Hall Social: um ambiente amplo e aconchegante para recepcionar seus convidados. Coworking: um espaço moderno e equipado para você trabalhar ou estudar. Salão de festas: um ambiente amplo e sofisticado para você comemorar seus eventos especiais. Piso 1: Bicicletário: um espaço seguro para você guardar sua bicicleta. Lavanderia: praticidade para lavar e secar suas roupas. Academia: um espaço completo para você cuidar da sua saúde e bem-estar. Rooftop: um terraço com vista panorâmica da cidade para você relaxar ou se divertir.
Venha conhecer este empreendimento incrível e descubra como ele pode ser o seu novo lar! Agende sua visita agora mesmo!
Características
- Academia
- Água Quente
- Aquecimento A Gás
- Ar Condicionado
- Brinquedoteca
- Churrasqueira
- Coworking
- Eclusa
- Elevador
- Espaço Delivery
- Fechadura Biométrica
- Lavanderia Compartilhada
- Portaria 24 Horas
- Rooftop
- Sacada
- Sacada com Churrasqueira
- Salão de Festas
- Wireless
O que tem perto?
- Açougue, Feiras e Supermercados
- Comércio
Imóveis Similares
- Dormitórios1 Banheiros1 Garagens1
- Dormitórios1 Banheiros1
- Dormitórios1 Suítes1 Banheiros1 Garagens1
- Dormitórios1 Banheiros1 Garagens1
- Dormitórios1 Banheiros1
- Dormitórios1 Banheiros1
- Dormitórios1 Banheiros1
- Dormitórios1 Banheiros1 Garagens1
- Dormitórios1 Banheiros1 Garagens1
- Dormitórios1 Banheiros1
- Dormitórios1 Banheiros1
- Dormitórios1 Banheiros1




















