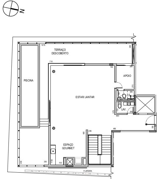
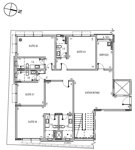
Cobertura Duplex à Venda com 3 dormitórios, sendo 1 suíte, 320,70 m²
Rua Fernando SimasMercês, Curitiba - PR
Informações
- Perfil: Novo
- Mobília: Não Mobiliado
- Em Condomínio
- Total de Unidades: 45
- Nº de Andares: 8
- Nº de Unidades por Andar: 3
- Andar: 8º
- Ano da Construção: 2026
- Previsão de Entrega: 30/09/2026
- Aceita FinanciamentoSimular Financimento
Medidas
- Área Total: 627,13 m² (R$ 14.188/m²)
- Área Privativa: 320,70 m²
Descrição
Um Oásis de Luxo e Exclusividade em Curitiba Aqui, você encontrará tudo o que precisa para viver com conforto, segurança, praticidade e sofisticação em um ambiente projetado para oferecer o máximo de bem-estar.
Áreas comuns que encantam:
Paisagismo exuberante e decoração impecável: Um verdadeiro refúgio verde em meio à cidade, ideal para relaxar e se conectar com a natureza.
Sistema de aquecimento (trocador de calor) para as piscinas: Desfrute de momentos de lazer na piscina em qualquer época do ano, com água na temperatura ideal.
Mobiliário cuidadosamente selecionado: Ambientes aconchegantes e convidativos, perfeitos para receber amigos e familiares ou simplesmente relaxar após um dia longo.
Áreas comuns entregues mobiliadas e decoradas: Tudo pronto para você aproveitar ao máximo seu novo lar sem se preocupar com detalhes.
Wi-fi em todo o empreendimento: Conectividade garantida para você navegar, trabalhar ou se divertir online.
Ar-condicionado nas áreas comuns: Clima agradável em todos os momentos, mesmo nos dias mais quentes.
Iluminação em LED com sensores de presença: Economia de energia e praticidade para você se sentir sempre seguro e confortável.
Piso epóxi nas garagens: Facilidade de limpeza e durabilidade para o seu veículo.
Controle de acesso na entrada de pedestres e nas áreas comuns: Segurança 24 horas por dia para você e sua família.
Presença de materiais naturais: Um toque de sustentabilidade e harmonia com o meio ambiente.
Projeto de segurança pela empresa Haganá: Tranquilidade total para você e seus entes queridos.
Horta e pomar: Alimentos frescos e saudáveis direto da horta, cultivados com carinho e cuidado.
Gerador de emergência: Energia garantida para os controles de acesso, elevadores de emergência, equipamentos técnicos e iluminação de emergência, mesmo em caso de falhas na rede elétrica.
Diferenciais dos apartamentos que elevam seu padrão de vida:
Paredes em alvenaria: Construção sólida e resistente para maior segurança e conforto acústico.
Elevador social privativo com acionamento por biometria e senha: Praticidade, segurança e exclusividade para você e sua família.
Porta de acesso de serviço com fechadura eletrônica: Mais segurança e praticidade no seu dia a dia.
Esquadrias dos quartos com tratamento acústico e vidros de alta performance: Isolamento acústico superior para um ambiente silencioso e tranquilo.
Piso nivelado entre a sacada e o living: Ampliação do espaço e integração perfeita dos ambientes.
Cortineiros nas salas e quartos: Elegância e praticidade para o seu novo lar.
Peitoril em vidro nas sacadas: Um toque de modernidade e sofisticação.
Porta com lâmina retrátil inferior para vedação acústica: Mais isolamento acústico para o seu quarto.
Manta para atenuação acústica das lajes nas salas, quartos, circulações e das prumadas dos banheiros: Ambiente silencioso e tranquilo para você relaxar e descansar.
Atenuação acústica nas tubulações: Menos ruídos para um maior conforto acústico.
Depósitos privativos das unidades no subsolo: Espaço extra para guardar seus pertences com segurança.
Ponto para carregamento individual de carro elétrico nas garagens: Sustentabilidade e praticidade para o futuro.
Sistema de automação: Mais conforto e praticidade para o seu dia a dia.
Churrasqueira a carvão nos apartamentos tipo E duplex e churrasqueira a gás nos apartamentos garden: Espaço perfeito para reunir amigos e familiares para um churrasco animado.
Infraestrutura para ar-condicionado hiwall ou cassete de 1 via no estar / jantar e nos quartos: Clima agradável em todos os ambientes, mesmo nos dias mais quentes.
Piscina com bomba, filtro e infra para trocador de calor nos duplex: Diversão garantida para toda a família, com água na temperatura ideal.
Metais com vazão entre 6 e 8 L/min: Mais economia de água e praticidade no seu dia a dia.
Infraestrutura para sistema de aquecimento por aquecedor de passagem e recirculação, atendendo todo o apartamento (exceto lavabo e banheiro de serviço)
Visitas acompanhadas e informações:
Para conhecer de perto e agendar sua visita, entre em contato conosco:
Ligue:
Envie um e-mail:
Envie um Whatsapp:
Observações Importantes:
As visitas são realizadas apenas com acompanhamento do corretor responsável.
Os preços e a disponibilidade dos imóveis estão sujeitos a alterações sem aviso prévio. Consulte-nos para obter informações atualizadas.
Características
- Academia
- Água Quente
- Aquecimento A Gás
- Ar Condicionado
- Área de Serviço
- Brinquedoteca
- Churrasqueira
- Elevador
- Espaço Gourmet
- Garagem
- Pet Place
- Piscina
- Piscina Coberta
- Piscina Privativa
- Playground
- Portaria 24 Horas
- Quadra Poliesportiva
- Sacada com Churrasqueira
- Salão de Festas
O que tem perto?
- Açougue, Feiras e Supermercados
- Comércio

































